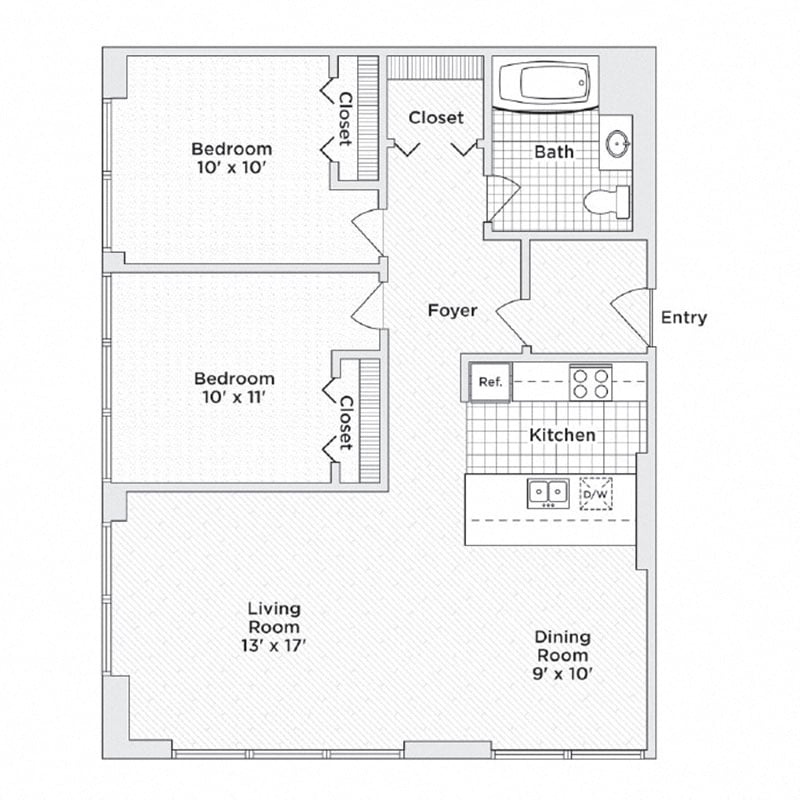
B 2 Bedroom 1 Bath

Home  |  Floorplans   |  B 2 Bedroom 1 Bath
central high stephenson mills apartments floor plan B

B 2 Bedroom 1 Bath

Bedrooms Bathrooms Square Feet Starting Rent Available Units
2 1 803 $1199 3

Ready to begin the Move-in Process?

         

Request a Tour

X